Home

Interessen

Versteckte und vergessene Objekte

DDR-Funktechnik

DDR-Alarmtechnik

Amateurfunk

Links

 

 

 

 

 

 

 

 

 

Impressum

 

Das Gerätesystem U 600  

Dieses Gerätesystem ist das erste in der DDR in Großserie hergestellte volltransistorierte Funkgerätesystem für Mobil- und Stationäreinsatz. Es wurde im Zeitraum 1970 bis 1982 im Funkwerk Köpenik im gleichnamigen Berliner Stadtbezirk hergestellt. Dieses Werk gehört heute zu DeTeWe und stellt noch immer Funkgeräte her. Das Gerätesystem löste ältere, noch teilweise röhrenbestückte Geräte ab und wurde ab 1980 vom im gleichen Werk hergestellten System U 700 abgelöst.  

1. Sende- Emfangsgerät USE 600  

Aufbau

Das USE 600 ist in einem Gehäuse aus Alu-Druckguss mit Deckeln aus gleichem Material eingebaut. Das Gehäuse ist ist in mehrere Kammern aufgeteilt, welche die Abschirmung der Baugruppen untereinander sicherstellen. In einer durchgängigen Kammer befindet sich die Batteriestromversorgung (Transverter), der Rest des Gehäuses ist durch eine Trennwand in Sender- und Empfängerseite getrennt. Die Empfängerseite hat nur eine Kammer, in welcher sich die Empfänger- Rückverdrahtungsplatine mit der Steckleiste für den Anschluss von Bedienpult / Bedienteil sowie folgenden Leiterplatten befindet:

- bis 8 (Sonderausführung 16) Quarzoszillatorplatinen mit je einem Quarz für Sender und Empfänger

- Empfangsoszillator-Schwingkreisplatine

- Empfangs-Vorverstärker mit Vorkreisen

- 1. ZF- Baugruppe mit Quarzfrequenz-Verdreifacher, Mischer, Quarz-Brückenfilter und ZF-Verstärker

- 2. ZF-Baugruppe mit Quarzoszillator, Mischer, mechanischem Filter, ZF-Verstärker und Demodulator

- NF-Baugruppe mit Rauschsperre, NF-Schaltstufe, NF-Filter, NF-Endstufe

Auf der Senderseite befinden sich drei unterschiedlich große Kammern. In der größten Kammer befindet sich die Sender- Rückverdrahtungsplatine mit den Leiterplatten:

- Ein- oder Zweiton-Rufauswerter

- Relaisplatine mit Sende / Empfangsrelais und Rufauswerter-Relais

- Modulator-Baugruppe mit NF-Begrenzer, NF-Filter und Phasenbrücken-Modulator

- Vervielfacher-Baugruppe mit Verdreifacher, zwei Verdopplern und Treiberstufe

In der mittelgroßen Kammer befindet sich die zweistufige Sendeendstufe, in der kleinen Kammer befindet sich eine Leiterplatte mit Oberwellenfilter und Antennenrelais.

Das USE kann nur in Verbindung mit einem Bedienteil oder Bedienpult betrieben werden, die maximale Kabelentfernung zwischen USE und Bedieneinrichtung beträgt je nach verwendetem Kabel 50 m.  

technische Daten  

allgemein  

Frequenzbereich 2m                       146 - 174 MHz

Frequenzbereich 4m                       68 -   87,5 MHz

Anzahl der Kanäle                           8 (Sonderausführung: 16 )

Kanalabstand                                   25 kHz

Modulationsart                                 F3 (Phasenwinkelmodulation)

Modulationscharakteristik               6 dB / Oktave

Frequenzhub                                    2 kHz ( max. 5 kHz )

NF-Übertragungsbereich                300 - 3000 Hz

Stromversorgung                              5,5 - 7,5 V / 11 - 15 V / 22 - 30 V Gleichspannung

                                                           (Fahrzeugbatterie oder Netzgerät) bei beliebiger

                                                           Masseverbindung

Stromaufnahme (bei Spannung)         6 V                 12 V               24 V

            Empfang                               ca. 2,1 A        ca. 1,2 A        ca. 0,7 A

            Senden                                 ca. 7,0 A        ca. 3,8 A        ca. 2,2 A

Betriebstemperaturbereich                 - 25 bis + 55 °C

Temperaturbereich für daten-             - 10 bis + 40 °C

haltigen Betrieb

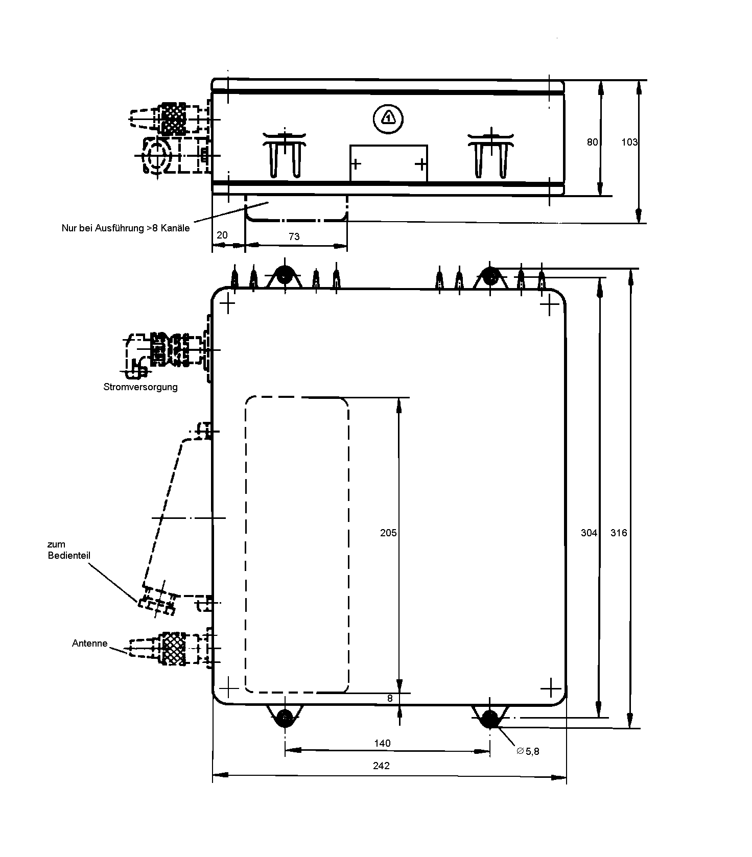
Abmessungen (mm)                            316 x 242 x 80 (16-Kanal 316 x 242 x 103)

Masse                                                4,6 kg

Schutzgrad                                         IP 42  

Empfänger  

Prinzip                                               Doppelsuper

Zwischenfrequenzen                           10,7 MHz, 450 kHz

Schaltbandbreite                                1 MHz (HF-Teil schmalbandig)

                                                          5,5 MHz (HF-Teil breitbandig)

Quarzfrequenz                                    = (Empfangsfrequenz - 10,7 MHz) / 3

Empfindlichkeit (12dB SINAD)          < 0,6 µV

Frequenzkonstanz                               ± 2,5 kHz

Nachbarkanalselektion                       > 75 dB

Intermodulationsabstand                     > 65 dB

NF-Ausgangsleistung                         1 W an 39 Ohm

Klirrfaktor                                          < 7%

Rauschunterdrückung                         > 40 dB

unerwünschte Abstrahlung                  < 0,1 µW

Ruffrequenzen (Einton)                       1750 , 2135 oder 2600 Hz

Ruffrequenzen (Zweiton)                     370 / 550 / 675 / 825 / 1010 / 1240 / 1520 / 1860 /

                                                          2280 / 2800  

Sender  

Prinzip                                               Quarzoszillator, Phasenmodulator, Vervielfacher

Schaltbandbreite                                700 kHz

Quarzfrequenz                                    = Sendefrequenz / 12

Sendeleistung                                    10 W

Frequenzkonstanz                             ± 2 kHz

Klirrfaktor                                        < 10%

Geräuschabstand                              > 40 dB

Oberwellenleistung                            < 25 µW

Nebenwellenleistung                          <   1 µW

Antennenausgang                              50 Ohm unsymmetrisch (PL-Buchse)  

Maßbild                        Ansicht                       Innenansicht Empf.    Innenansicht Sender

 

Bedienteile u. Bedienpulte  

UBT 1.1 : Bedienteil mit Rufspeicher und Eintonrufgeber für raue Umgebung

Abmessungen (mm): 220 x 115 x 64  Masse: ca. 1 kg

UBT 1.2 : Bedienteil mit Rufspeicher und Eintonrufgeber für Fahrzeugeinsatz

Abmessungen (mm): 180 x 137 x 55

UBT 1.3 : einfaches Bedienteil ohne Rufspeicher, mit Eintonrufgeber für Fahrzeugeinsatz

Abmessungen (mm): 180 x 122 x 55  

UBT 1.6 : Bedienteil mit Rufspeicher, auch mit Rufzeitschalter und Anschluss für externen Zweitonrufgeber, für raue und feuchte Umgebung

Abmessungen (mm): 220 x 115 x 64  Masse ca. 1,6 kg

URZ 2 : Rufzusatz für Bedienteile

UBP 5.1 : Bedienpult mit Rufspeicher und Eintonrufgeber

Abmessungen (mm): 297 x 202 x 127 Masse ca. 2,5 kg  

UBP 5.2 : Bedienpult mit Rufspeicher, Eintonrufgeber und Fernsprechanschluss

UBP 5.3 : Bedienpult mit Rufspeicher und Zweitonrufgeber

UBP 5.4 : Bedienpult mit Rufspeicher, Zweitonrufgeber und Fernsprechanschluss

UBP 5.7 : Bedienpult mit Rufspeicher, Rufzeitschalter, Ein- und Zweitonrufgeber und Fernsprechanschluss

UBZ 1 : Bediengerätezusatz für den Fernsprechanschluss der dafür vorgesehenen Bedienpulte

Technische Daten der Bedieneinrichtungen  

Mikrofonverstärker Funk (alle Bedieneinrichtungen)

Eingangsspannung                          2 mV

Ausgangsspannung                         100 mV

Frequenzbereich                             300 - 3000 Hz

Klirrfaktor                                      < 2 %

Geräuschabstand                            > 46 dB  

Mikrofonverstärker Fernsprechen (nur UBP 5.2, 5.4 und 5.7)

Eingangsspannung                          2 mV

Ausgangsspannung                         850 mV (400 mV an a-b-Ader)

Klirrfaktor                                      < 5 %

Frequenzbereich                             300 - 3400 Hz

Geräuschabstand                            > 60 dB  

Einton-Rufgenerator (fast alle Bedieneinrichtungen)

Frequenz                                         484, 598, 716, 895, 1072, 1417, 1750,

                                                       2135, 2600 Hz (eine von neun)

Frequenztoleranz                               ± 2 %

Ausgangsspannung                         2 mV  

Zweiton-Rufgenerator (UBP 5.3, 5.4 und 5.7 sowie URZ 2)

Frequenz                                         370, 550, 675, 825, 1010, 1240, 1520, 1860,

                                                       2280, 2800 Hz (zwei aus zehn)

Ausgangsspannung                         1 mV (ein Generator)

Frequenztoleranz                             ± 2 %

max. Teilnehmerzahl                        45  

Rufzeitschalter (UBT 1.6, UBP 5.3, 5.4 und 5.7)

Auslösung                                       Impuls, Dauer beliebig

Zeitdauer Eintonruf                         1,5 s ± 0,25s

Zeitdauer Zweitonruf                      1,5 s ± 0,25s  

Simplex-Sprachsteuerung (nur UBP 5.2, 5.4 und 5.7)

Ansprechempfindlichkeit                40 - 200 mV einstellbar

Einschaltverzögerung                      < 10 ms

Abschaltverzögerung                      0,4 - 1 s je nach Sprachpegel  

Allgemein

Lautsprecher                                   1 W, 45 Ohm

Lautstärkeschalter                           5 Stufen ( 20 / 14 / 10 / 6 / 0 dB Dämpfung)

Kanalwahl                                       8 (16) Stufen

Betriebsspannung                           - 12,6 V / - 25,2 V aus USE 600

 

2. Kontrollempfänger UFE 600

Der Kontrollempfänger UFE 600 ist ähnlich aufgebaut wie das Sende-Empfangsgerät und ist auch in einem Alu-Druckguss-Gehäuse untergebracht. Zum Sende-Empfangsgerät gibt es folgende Unterschiede:

- Stromversorgung aus dem Netz (110 oder 220 V, 50 Hz), eingebautes stabilisiertes

  Netzteil, oder externe Batterie 24V potentialfrei, automatische Umschaltung

- nur 4 Kanäle möglich, andere Quarzplatinen, da nur ein Quarz pro Kanal

- zusätzlicher Leitungsverstärker zum Betrieb als abgesetzter Empfänger

- kein Sender, dafür bis drei Rufauswerter

- Betrieb in Verbindung mit Bedienpult UBP 6.1 oder über Fernsprechleitung

Anschlussbelegungen System U600

Original-Unterlage VEB Funkwerk Köpenik (PDF, knapp 10 MByte!)